凸輪轉子泵維修技術要點分析
摘要:凸輪轉子泵是化纖生產中物料(漿料)榆送系統的重要設備,介紹其技術性能、常見故障分析和維修技術要點,為設備通過管道連續…
銷售熱線
021-56082699 56081570
電子郵箱
likaimp@163.com
摘要:凸輪轉子泵是化纖生產中物料(漿料)榆送系統的重要設備,介紹其技術性能、常見故障分析和維修技術要點,為設備通過管道連續…
摘要:在化工領域,考慮到一次投賚成本和維修簡便,很多裝置內輸送物料場合業主習慣選用離心泵的轉子泵型比較多,而轉子泵如螺桿…
隨著生活水平和健康意識的不斷提高,人們對于食品安全的要求也越來越高。在食品及藥品生產過程中越來越多地采用了全自動化控制…
WSY型立式玻璃鋼液下泵廣泛用于化工、石化、冶煉、染料、農藥、制藥、稀土、化肥等行業,在貯罐上輸送不含懸浮固體顆粒,不易結晶,溫度不高于100℃的各種非氧化性酸(鹽酸、稀硫酸、甲酸、醋酸、丁酸)等腐蝕介質的理想設備。
本單位生產的WSY型、FSY型兩種型式的泵,
只要液體高于泵體,即可不灌液而起動送液,平蓋板下設有泄漏孔,液體不會向貯罐外泄漏。
本泵與介質接觸的零部件,系用聚乙烯醇縮丁醛改性酚醛玻璃纖維,經高溫模壓成型的酚醛玻璃鋼制件,聯接管、出液管采用半干法卷制工藝制成的酚醛玻璃鋼管,葉輪軸套的裝配均用酚醛膠泥和泵軸粘成一體,液下各部裝配均用酚醛膠泥粘結,伸入液下全無金屬與介質接觸,耐腐性能絕對可靠,產品具有輕質、高強、不變形、耐溫、耐腐蝕等優良性能,在防腐方面可部分替代含鉬不銹鋼、鈦及鈦合金等貴重金屬。
泵在傳動和旋轉方向:泵通過爪型彈性聯軸器由電動機直接驅動,從電動機端看泵為順時針方向旋轉。
泵型號 | 流量(Q) | 揚程(H)米 | 轉數(n)轉/分 | 功率 N千瓦 | 功率 | 葉輪直徑(D)毫米 | 液下深度(L)毫米 | ||
---|---|---|---|---|---|---|---|---|---|
米3/時 | 升/秒 | 軸 | 電機 | ||||||
25WSY-22 | 2.88 4.05 6.48 |
0.18 1.12 1.80 | 22 | 2900 | 1.35 1.18 1.06 | 2.2 | 13 | 120 | 800
至
3000 |
18 | 17 | ||||||||
15 | 25 | ||||||||
25WSY-30 | 2.88 6.48 9.00 |
0.80 1.80 2.52 | 30 | 2900 | 1.85 2.10 1.45 | 3 | 13 | 120 | |
20 | 17 | ||||||||
15 | 25 | ||||||||
40WSY-25 | 5.76 8.10 13.32 |
1.60 2.24 3.70 | 25 | 2900 | 2.85 1.09 1.83 | 4 | 14 | 142 | |
20 | 21 | ||||||||
15 | 30 | ||||||||
40FSY-22 | 8.10 15.84 20.00 | 2.24 4.4 5.50 | 22 | 2900 | 1.09 1.45 1.83 | 3 | 44 | 140 | |
18 | 53 | ||||||||
15 | 44 | ||||||||
40FSY-18 | 6.48 15.00 21.60 | 1.80 4.17 6.00 | 18 | 2900 | 1.00 1.20 1.76 | 2.2 | 32 | 132 | |
15 | 51 | ||||||||
12 | 40 | ||||||||
40WSY-50 | 6.48 8.64 14.40 |
1.80 2.40 4.00 | 50 | 2900 | 6.35 5.56 4.76 | 7.5 | 14 | 144 | |
45 | 19 | ||||||||
35 | 30 | ||||||||
40FSY-35 | 10.0 20.0 30.0 |
2.8 5.5 8.3 | 34 | 2900 | 1.86 2.62 3.09 | 4 | 50.6 | 162 | |
30 | 64 | ||||||||
24 | 63.5 | ||||||||
50FSY-35 | 30.0 45.0 55.0 |
8.3 12.5 15.1 | 35 | 2900 | 4.94 5.59 6.33 | 7.5 | 58 | 182 | |
32 | 70 | ||||||||
28 | 66 | ||||||||
50FSY-35A | 25.0 35.0 45.0 |
7.0 9.7 12.5 | 26 | 2900 | 2.83 3.35 3.87 | 5.5 | 63 | 168 | |
25 | 70 | ||||||||
22 | 69 | ||||||||
80FSY-35 | 56.0 92.0 110 |
15.5 25.5 30.5 | 35 | 2900 | 8.45 10.1 10.8 | 15 | 63 | 184 | |
29 | 72 | ||||||||
25 | 69 | ||||||||
80FSY-35A | 45.0 69.0 90.0 |
12.5 19.2 25.0 | 26 | 2900 | 5.12 6.2 7.35 |
11 | 62 | 163 | |
22 | 67 | ||||||||
19 | 63 |
< 本泵廣泛用于化工、石化、冶煉、染料、農藥、制藥、稀土、化肥等行業,在貯罐上輸送不含懸浮固體顆粒,不易結晶,溫度不高于100℃的各種非氧化性酸(鹽酸、稀硫酸、甲酸、醋酸、丁酸)等腐蝕介質的理想設備。
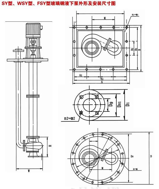
安裝尺寸
型號 | W | M | H | D | DO | n-m | Dg | D1 | DO1 | n2-m2 |
SY40×32-20 | 340 | 205 | 200 | 450 | 400 | 8-F16 | 40 | 145 | 110 | 4-F18 |
SY50×40-20 | 340 | 205 | 210 | 450 | 400 | 8-F16 | 40 | 145 | 110 | 4-F18 |
SY65×50-20 | 370 | 205 | 220 | 450 | 400 | 8-F16 | 50 | 160 | 125 | 4-F18 |
25WSY-22 | 330 | 205 | 200 | 450 | 400 | 8-F16 | 25 | 110 | 85 | 4-F14 |
25WSY-30 | 330 | 205 | 200 | 450 | 400 | 8-F16 | 25 | 110 | 85 | 4-F14 |
40WSY-25 | 340 | 205 | 200 | 450 | 400 | 8-F16 | 40 | 145 | 110 | 4-F18 |
40FSY-22 | 340 | 205 | 200 | 450 | 400 | 8-F16 | 40 | 145 | 110 | 4-F18 |
40FSY-18 | 340 | 205 | 200 | 450 | 400 | 8-F16 | 40 | 145 | 110 | 4-F18 |
40WSY-50 | 410 | 330 | 230 | 600 | 550 | 8-F18 | 32 | 140 | 100 | 4-F18 |
50FSY-35 | 370 | 205 | 220 | 450 | 400 | 8-F16 | 50 | 160 | 125 | 4-F18 |
40FSY-35 | 340 | 205 | 220 | 450 | 400 | 8-F16 | 50 | 160 | 125 | 4-F18 |
50FSY-20 | 340 | 205 | 210 | 450 | 400 | 8-F16 | 40 | 145 | 110 | 4-F18 |
80FSY-35 | 500 | 330 | 250 | 600 | 550 | 8-F18 | 65 | 180 | 145 | 4-F18 |
80FSY-35 | 500 | 330 | 250 | 600 | 550 | 8-F18 | 80 | 190 | 160 | 4-F18 |
上一條: YW型液下式無堵塞排污泵
下一條: NL型污水泥漿泵